Cara Membuat Wiring Diagram Instalasi Listrik. Tutorial AutoCAD LENGKAP Check DeskripsiContact Trainer. Dengan berdasarkan gambar wiring diagram tersebut maka kita bisa menentukan bentuk instalasi yang akan kita gunakan.
Untuk level instalasi kita hanya perlu memahami cara menjadikan listrik 3 phase ke 1 phase saya telah menggambar wiring diagram panel listrik 3 phase yang dapat membantu electrical pemula memahami dasar dasar panel listrik 3 phase mari kita simak gambar berikut ini. Tutorial AutoCAD LENGKAP Check DeskripsiContact Trainer. Aplikasi menggambar instalasi listrik android gambar instalasi listrik rumah tinggal software desain panel listrik cara menggambar instalasi listrik dengan visio 2019 software wiring diagram listrik aplikasi instalasi listrik android cara menggambar instalasi listrik dengan autocad desain instalasi listrik.
Dalam tahap instalsi listrik kita tentu membutuhkan gambaran instalasi yang sudah didesain sebelumnya beberapa gambar yang dibutuhkan dalam tahap instalasi diantaranya yaitu gambar wiring diagram garis ganda dan diagram garis tunggal dan pada kesempatan kali ini saya akan sedikit berbagai tentang cara menggambar wiring diagram garis ganda dan juga garis tunggal.
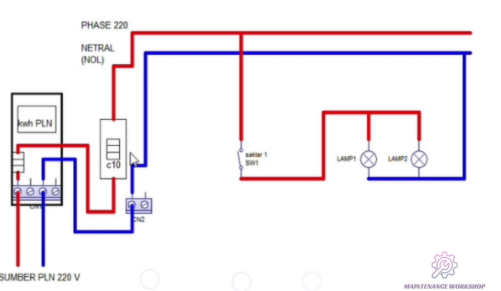
Wiring diagram elektrik ini sangat diperlukan oleh Panel Maker dalam perencanaan pembuatan Panel Listrik. Wiring Diagram Rumah Schematic. Diagram Instalasi Listrik 1 NYA 25 KWH NYA 4 NYA 25 220 V 2 50 Hz Keterangan. Sakelar kutub dua KWH.
